Property Description
-Beautifully appointed medical office in coveted Westchase Commons.
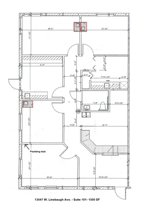
-1500 SF of pre-plumbed space with existing sinks and cabinetry in four of the five office/exam rooms.
– The spacious floor plan provides generously sized rooms and high ceilings with recessed lighting.
– Ideal location is easily accessed from Hillsborough, Pinellas and Pasco and surrounded by upscale residential communities
Address Map
US
FL
Tampa
33626
W Linebaugh
13047
Ave
33626
0
W83° 21' 29''
N28° 3' 31.2''
13047 W Linebaugh Medical Office
13047 W Linebaugh Ave, Tampa, Florida 33626
3,000 Sqft
Negotiable
Basic Details
Listing Type : For Lease
Property Type : Medical Office
Space Available : 1,500 Sqft
Price : Negotiable
Lease Type : Modified Gross
Building Size : 3,000 Sqft

















